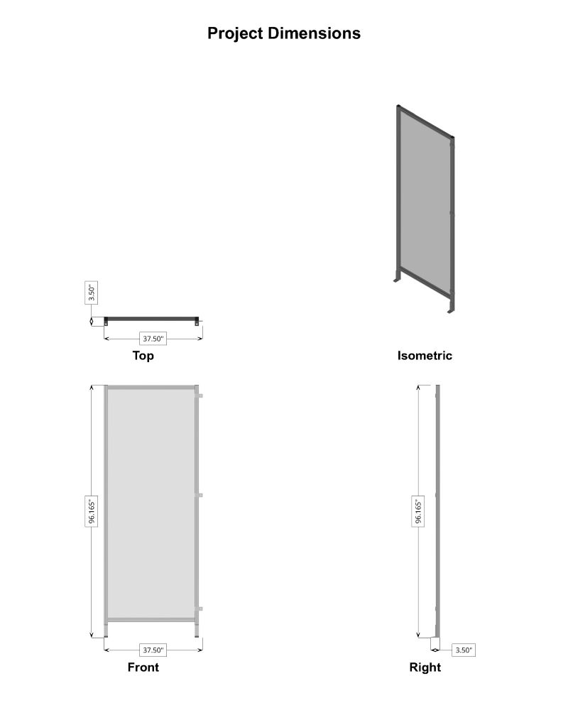
Standard 3' x 8' Poly Panel
Standard 3' x 8' Poly Panel
*Download the CAD file to various formats to integrate into other design software's
* Open the TBUILD file to modify the dimensions and/or add additional components
Standard 3' x 8' Poly Panel
*Download the CAD file to various formats to integrate into other design software's
* Open the TBUILD file to modify the dimensions and/or add additional components